Startseite
Fotos
Kontakt
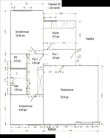
  • Feldmark 32


  • Grundriss


  • Kücke